Trilocale in affitto

Milano, Piazza Prealpi - Prealpi Mac Mahon
€ 1.330 / mese
3 locali 3 locali
72 Mq 72 Mq
1 bagno 1 bagno

Trilocale in affitto

Milano, Piazza Prealpi - Prealpi Mac Mahon

Descrizione annuncio

Piazza Prealpi:

Adiacente a Via Monte Generoso e Via Mac Mahon, quindi a pochi metri dalla stazione ferroviaria di Villapizzone dove troviamo le linee R6,RE2,S5,S6,S11, oltre che dalle fermate dei vari mezzi di superficie (bus 48/57 + tram 19/12), che in meno di 15 minuti collegano al centro della città, proponiamo in stabile d'epoca degli anni '30, ottimamente tenuto nelle parti comuni e con cortile condominiale, un TRILOCALE posto al primo piano in stabile dotato di ascensore e servizio di portineria full-time.

La zona risulta tranquilla e ben servita, fornita di tutti i servizi di prima necessità come supermercati, farmacie, scuole, poste, bar, ristoranti. Inoltre, posizione strategica per l'accesso a tutte le arterie tangenziali/autostradali.

Inoltre, posizione strategica per l'accesso a tutte le arterie tangenziali/autostradali.

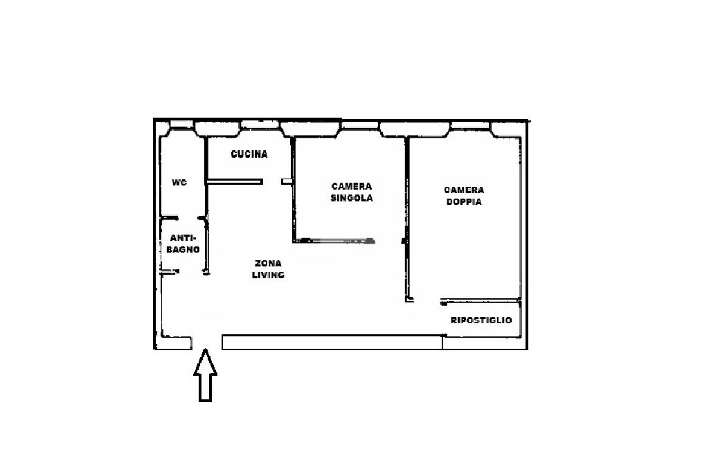
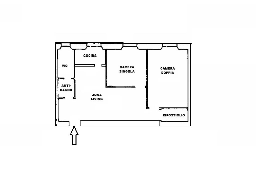
L'appartamento è così composto:
Ingresso che si apre direttamente sull'ampia e luminosa zona living, con cucina separata e piacevole affaccio sul cortile interno.
Dalla zona giorno, sul lato destro, si accede alle due camere matrimoniali, entrambe con la stessa esposizione. Infine bagno finestrato con vasca.

L'appartamento si presenta ristrutturato e arredato, come da foto, con pavimentazione in listoni di parquet in tutti gli ambienti, che conferisce calore e accoglienza all'intera casa. Fanno eccezione la cucina e il bagno, dove è presente una pavimentazione in gres.
Completano la proprietà infissi doppio vetro PVC, porta blindata e videocitofono.

Canone di locazione complessivo: 1.700,00, così suddiviso:

-posto letto in stanza doppia canone 390+115 euro di spese condominiali e bollette;

- camera singola 550 euro di canone +160 di spese condominiali + bollette.

Il canone è onnicomprensivo, e include tutte le spese condominiali e il riscaldamento.

CONTRATTO TRANSITORIO 12 MESI.

OGNI AGENZIA HA UN PROPRIO TITOLARE ED È AUTONOMA.

CONSULENZE MUTUO GRATUITE.

LE INFORMAZIONI NON COSTITUISCONO ELEMENTO CONTRATTUALE.

Mostra tutto

Nelle vicinanze

Trasporto pubblico Trasporto pubblico
Portello
Portello
1,5 Km
Gerusalemme
Gerusalemme
1,5 Km
stazione di Milano Villapizzone
stazione di Milano Villapizzone
860 m
Milano Bovisa
Milano Bovisa
970 m
Piazza Prealpi
Piazza Prealpi
20 m
Ricariche auto elettriche Ricariche auto elettriche
MediaWorld Certosa
660 m
Iper Portello
740 m
Enterprise Hotel, Design Hotel & Congress Centre
920 m
BECHARGE Milano Salvioni
1,1 Km
EnelX EVA+ ADS Q8 MILANO De Gasperi
1,2 Km
Scuole Scuole
Scuola primaria Dante Alighieri
260 m
Liceo scientifico statale Piero Bottoni
300 m
Scuola secondaria di primo grado Giancarlo Puecher
350 m
Scuola primaria Rinnovata Pizzigoni
450 m
Scuola primaria Console Marcello
590 m
Farmacia Farmacia
A.F.M. COMUNALE N.14
290 m
Farmacia Carletti
300 m
Farmacia Fusco
370 m
Farmacia
590 m
Farmacia
630 m
Ospedali Ospedali
Istituto Clinico Sant'Ambrogio
1,1 Km
Poliambulatorio Cesare Pozzo
1,2 Km
Ospedale FieraMilano
1,4 Km
Ospedale dei Bambini "Vittore Buzzi"
1,4 Km
Clinica Columbus
2,4 Km
Supermercati Supermercati
Punto SMA
250 m
Esselunga SottoCasa
320 m
In's
470 m
BricoCenter Portello
610 m
Carrefour Market
780 m
Negozi Negozi
Negozi
110 m
La Bunica – Sapori dell'Est
180 m
Coin
250 m
Panetteria
360 m
Pasticceria Mac Mahon
390 m
Bar Bar
Bar
180 m
Mac 111
310 m
Vanilla
550 m
Bar Bilancia
580 m
Bar tabacchi ricos
580 m
Ristoranti Ristoranti
Ristorante Brasile
170 m
Ristoranti
210 m
La Sfinge
240 m
La Scogliera
350 m
Innocenti Evasioni
400 m
Mostra tutto

Caratteristiche

Rif.:
61134204
Piano:
1 di 5 con ascensore (Piano basso)
Camere da letto:
2
Arredamento:
Completo
Condizionamento:
Assente
Ascensore:
Mostra tutto
Prezzo Prezzo
€ 1.330 / mese
Spese annue Spese annue
€ 4.800

Classe Energetica

G
G
G
G
G
G
G
G
G
EP globale non rinnovabile:
191.00 kW h/m² anno
EP globale rinnovabile:
1.00 kW h/m² anno
EP invernale del fabbricato:
EP estiva del fabbricato:
Anno di costruzione:
1940
Riscaldamento:
Centralizzato
Tipo impianto:
A radiatori
Tipo alimentazione:
Metano

Ti interessa visionare l'immobile?

Fissa un appuntamento  Fissa un appuntamento

Richiedi informazioni

Clicca su Leggi per aprire l'informativa
* Questi campi sono obbligatori
Affiliato
Sviluppo Immobiliare Prealpi Srl
Via Grigna, 35 20155 Milano (MI)

Il nostro staff


  • Gianluigi Di Paola
    Collaboratore

  • Luca Amendola
    Responsabile

  • Rita Morciano
    Coordinatrice

  • Juan Sebastian Pezzati Zuppa
    Collaboratore

  • Giancarlo Aurora
    Responsabile

  • Gerson Escobar
    Collaboratore
Via Grigna, 35 20155 Milano (MI)
Zona: Prealpi - Mac Mahon - Cagnola-Villapizzone
Mostra su mappa
Orari: Dal Lunedì al Venerdì: 09.00-20.00 - Sabato 09.00-18.00
Affiliato
Sviluppo Immobiliare Prealpi Srl
Via Grigna, 35 20155 Milano (MI)

2025 Tecnocasa Franchising S.p.A. - P. IVA 08365160152 - Via Monte Bianco 60/A 20089 Rozzano (MI). Ogni agenzia ha un proprio titolare ed è autonoma. Privacy policy | Policy utilizzo | Cookie policy