 
			 
				Via Pietro da Cemmo:
 Adiacente a Via Mac Mahon e Via Giovanni Duprè a 10 minuti dalle metro(M5 CENISIO) ed a pochi metri dalla fermata della stazione ferroviaria di Villapizzone dove troviamo le linee R6,RE2,S5,S6,S11 , oltre che dalle fermate dei vari mezzi di superficie (bus 90/91 + tram 19/12) e , che in meno di 15 minuti collegano al centro della città, proponiamo in contesto d'epoca degli anni '40, ottimamente tenuto nelle parti comuni , un TRILOCALE CON TERRAZZO DA RISTRUTURARE, posto al piano rialzato, in stabile con servizio di pulizia settimanale.
La zona risulta tranquilla e ben servita, fornita di tutti i servizi di prima necessità come supermercati, farmacie, scuole, poste, bar, ristoranti. Inoltre, posizione strategica per l'accesso a tutte le arterie tangenziali/autostradali.
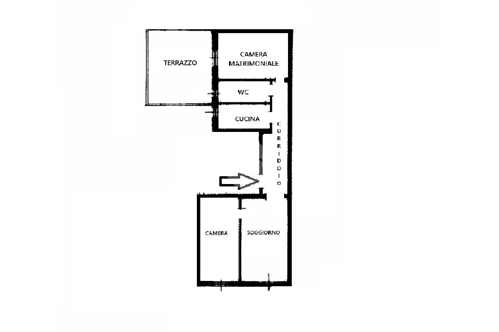
L'appartamento risulta essere così composto:
Accogliente ingresso che introduce a un funzionale corridoio distributivo.
Sul lato sinistro troviamo, in fondo, una prima camera matrimoniale dotata di porta finestra con accesso diretto all'ampio terrazzo dell'immobile: uno spazio esterno riservato e vivibile, perfetto per cene all'aperto, momenti di relax.
Per gli amanti delle ampie zone living, in fase di ristrutturazione si potrebbe valutare l'inversione tra cucina e bagno. Questa soluzione permetterebbe di abbattere la parete che separa i due ambienti attuali e realizzare un'ampia zona giorno con cucina a vista, in diretto collegamento con il terrazzo.
Una configurazione moderna, funzionale e perfetta per organizzare cene con amici, sfruttando appieno lo spazio esterno in totale continuità con la zona living.
A seguire, sempre con la stessa esposizione luminosa, si trovano il bagno finestrato con box doccia e la cucina abitabile, ideale per chi ama cucinare in un ambiente spazioso e ben arieggiato.
Sul lato destro del corridoio si sviluppano invece il soggiorno e la camera matrimoniale, entrambi affacciati su Via Pietro da Cemmo, godendo di buona esposizione e ottima luminosità.
Soluzione abitativa adatta a diverse tipologie di persone, di fatti per i vantaggi e le comodità che offre è perfetta per le coppie che apprezzano la tranquillità, grazie al contesto in cui si trova, ma anche per investimento data la disposizione degli ambienti e la posizione strategica.
Le immagini pubblicate sono state ritoccate con l'aggiunta di mobili a scopo illustrativo e non costituiscono un'offerta contrattuale.
Cantina di pertinenza.
 Riscaldamento centralizzato. 
CONSULENZE MUTUO GRATUITE. 
 OGNI AGENZIA HA UN PROPRIO TITOLARE ED E'AUTONOMA. 
 LE INFORMAZIONI NON COSTITUISCONO ELEMENTI CONTRATTUALI.
Prezzo ridotto di €1 (14%%)
Ti interessa visionare l'immobile?