 
			 
				Piazza Prealpi
Adiacente a Via Monte Generoso e Via Mac Mahon, A pochi metri dalla stazione ferroviaria di Villapizzone dove troviamo le linee R6,RE2,S5,S6,S11, oltre che dalle fermate dei vari mezzi di superficie (bus 48/57 + tram 19/12), che in meno di 15 minuti collegano al centro della città, proponiamo in stabile civile degli anni 40 ben tenuto, un TRILOCALE RISTRUTTURATO posto al terzo piano in stabile non dotato di ascensore e con portineria FULL-TIME.
La zona risulta tranquilla e ben servita, fornita di tutti i servizi di prima necessità come supermercati, farmacie, scuole, poste, bar, ristoranti. Inoltre, posizione strategica per l'accesso a tutte le arterie tangenziali/autostradali.
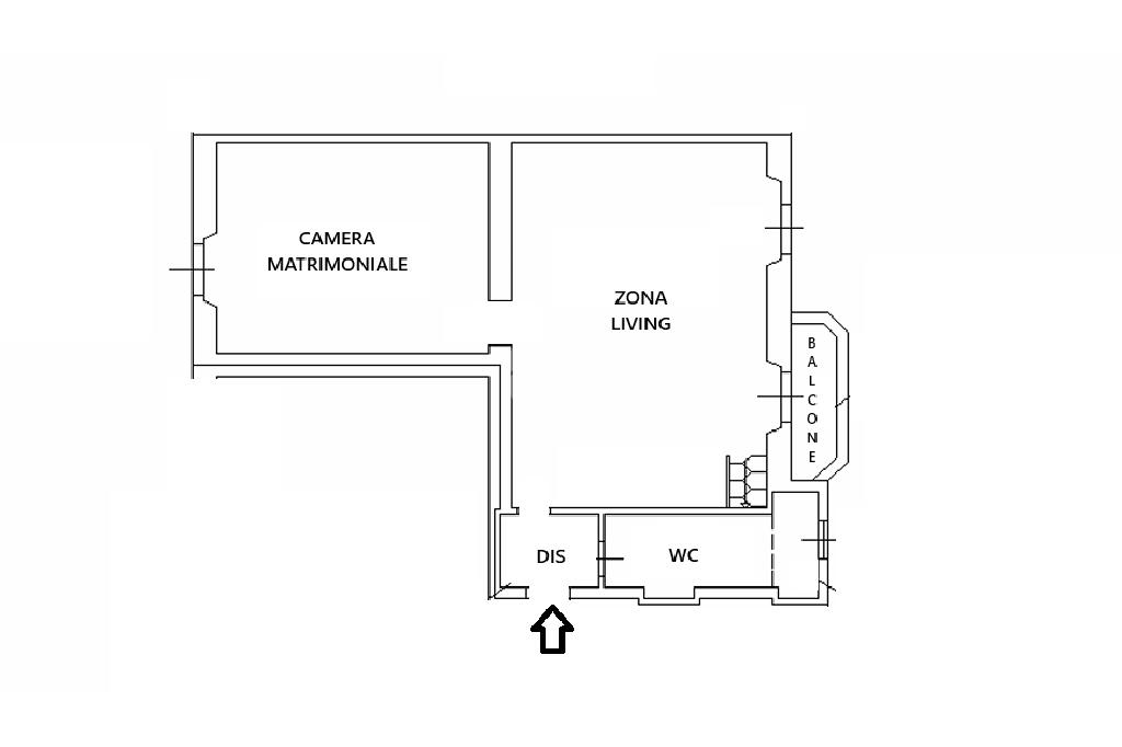
L'appartamento risulta essere così composto:
L'ingresso si apre su un disimpegno che conduce direttamente alla luminosa zona living con cucina a vista, con porta finestra che consente l'accesso al balcone, con gradevole affaccio sul cortile condominiale.
Alla destra del soggiorno si trovano le scale che conducono al piano superiore, dove è situata una prima camera da letto dotata di bagno en suite, offrendo comfort e privacy.
Ritornando nella zona giorno, esposizione opposta, si accede alla spaziosa camera matrimoniale, anch'essa con piacevole affaccio su un altro lato del cortile condominiale e con cabina armadio, pensata ad offrire uno spazio dedicato alla cura del proprio stile. Completa la proprietà un secondo bagno, finestrato e con box doccia, anch'esso con la stessa esposizione della zona living.
L'appartamento si presenta RISTRUTTURATO, con piastrelle in cotto in tutti gli ambienti, fatta eccezione del bagno dove troviamo delle piastrelle in ceramica e della cameretta dove troviamo del parquet. Infissi in TRIPLO VETRO PVC. Split d'aria condizionata.
Soluzione abitativa adatta a diverse tipologie di persone, di fatti per i vantaggi e le comodità che offre è perfetta per le coppie che apprezzano la tranquillità, grazie al contesto in cui si trova ma anche per investimento vista la disposizione degli ambienti e la posizione strategica.
Le immagini pubblicate sono state ritoccate con l'aggiunta di mobili a scopo illustrativo e non costituiscono un'offerta contrattuale.
Riscaldamento centralizzato.
Basse spese condominiali.
CONSULENZE MUTUO GRATUITE.
OGNI AGENZIA HA UN PROPRIO TITOLARE ED E'AUTONOMA.
LE INFORMAZIONI NON COSTITUISCONO ELEMENTO CONTRATTUALE.
Ti interessa visionare l'immobile?