 
			 
				Via Bramantino:
Nel cuore del quartiere Cagnola, adiacente a Via Mac Mahon e Via De Predis ed a pochi metri dalla fermata della stazione ferroviaria di Villapizzone dove troviamo le linee R6,RE2,S5,S6,S11 , oltre che dalle fermate dei vari mezzi di superficie (bus 48/57 + tram 19/12), che in meno di 15 minuti collegano al centro della città, proponiamo in contesto d'epoca degli anni '40, ottimamente tenuto nelle parti comuni e con cortile condominiale ove è presente il posto bici per condomini, un TRILOCALE con TRIPLA ESPOSIZIONE , posto al terzo piano, in stabile non dotato di ascensore e con servizio di portineria full-time.
La zona risulta tranquilla e ben servita, fornita di tutti i servizi di prima necessità come supermercati, farmacie, scuole, poste, bar, ristoranti. Inoltre, posizione strategica per l'accesso a tutte le arterie tangenziali/autostradali. Inoltre, posizione strategica per l'accesso a tutte le arterie tangenziali/autostradali.
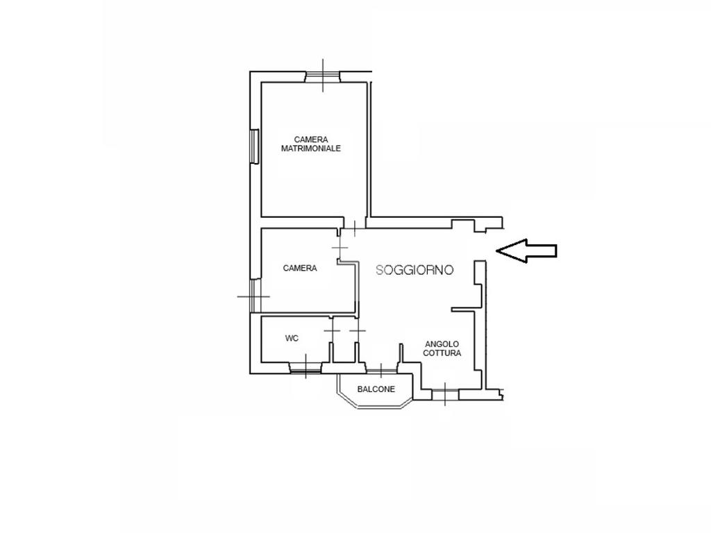
L'appartamento risulta essere così composto:
Ingresso in disimpegno che si apre, subito davanti, nell'ampia e luminosa zona living, con cucina a vista con porta finestra che permette di accedere al balcone della casa, con piacevole affaccio su cortile condominiale.
Proseguendo, sempre dalla sala, accediamo alle due camere matrimoniali, di cui una con doppio punto luce su due esposizioni diverse e la seconda, finestrata e con affaccio sempre interno, ma opposto rispetto alla sala. Infine il bagno finestrato con box doccia.
L’appartamento si presenta in ottime condizioni con pavimentazione in gres porcellanato opaco in tutti gli ambienti. Inoltre infissi in DOPPIO VETRO PVC, SPLIT D’ARIA condizionata in tutti gli ambienti.
Soluzione abitativa adatta a diverse tipologie di persone, di fatti per i vantaggi e le comodità che offre è perfetta per le famiglie che apprezzano la tranquillità, grazie al contesto in cui si trova ma anche per investimento vista la disposizione degli ambienti e la posizione strategica.
Cantina e Solaio di pertinenza.
Riscaldamento centralizzato.
CONSULENZE MUTUO GRATUITE.
OGNI AGENZIA HA UN PROPRIO TITOLARE ED E'AUTONOMA.
LE INFORMAZIONI NON COSTITUISCONO ELEMENTI CONTRATTUALI.
 Immobile valutato con T·Valuta
Immobile valutato con T·Valuta
								Ti interessa visionare l'immobile?